Cozy
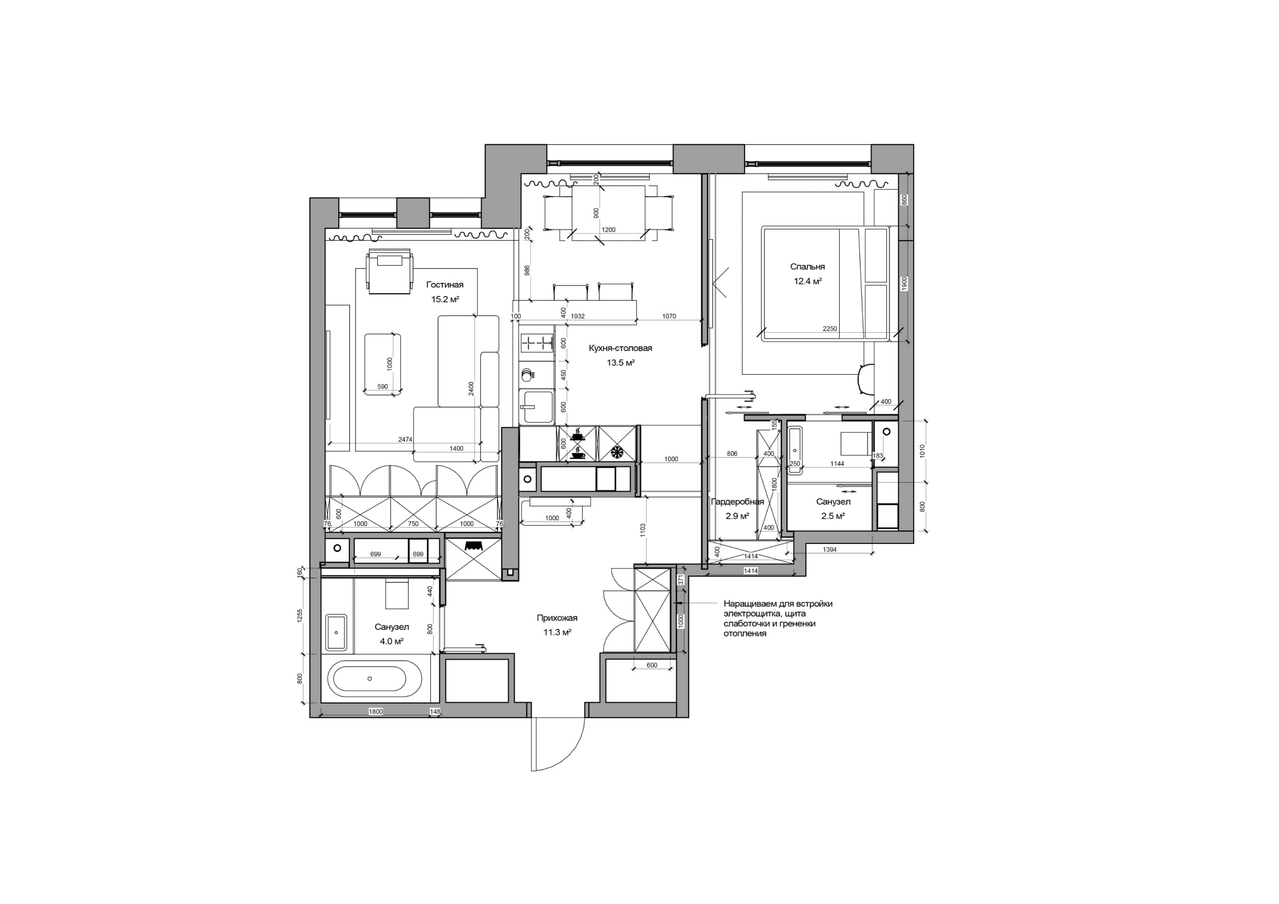
Общая площадь: 63,5 M²
Статус: На стадии реализации
Расположение: Москва
Оставить заявку
О нас
Публикации
Контакты
Услуги
Главная
Жилой интерьер
Коммерческий интерьер
Архитектура
Свяжитесь с нам
Заполните поля ниже и мы с Вами свяжемся!
ОТПРАВИТЬ
НАЖИМАЯ КНОПКУ "ОТПРАВИТЬ", Я СОГЛАШАЮСЬ С
ПРАВИЛАМИ ПОЛИТИКИ КОНФИДЕНЦИАЛЬНОСТИ
САЙТА.
ЖИЛОЙ ИНТЕРЬЕР
КОММЕРЧЕСКИЙ ДИЗАЙН
АРХИТЕКТУРА
УСЛУГИ
О НАС
ПУБЛИКАЦИИ
КОНТАКТЫ
ОСТАВИТЬ ЗАЯВКУ
Made on
Tilda