Top.Mail.Ru

Марсель 70

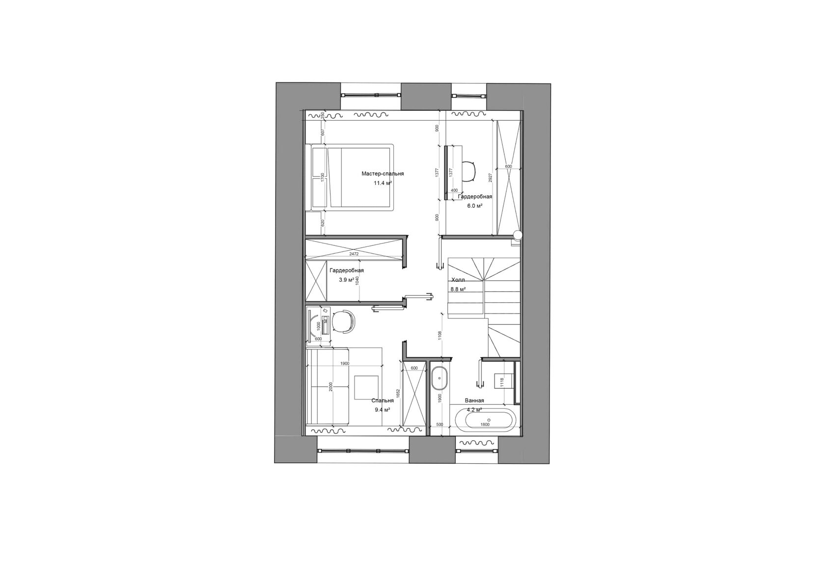
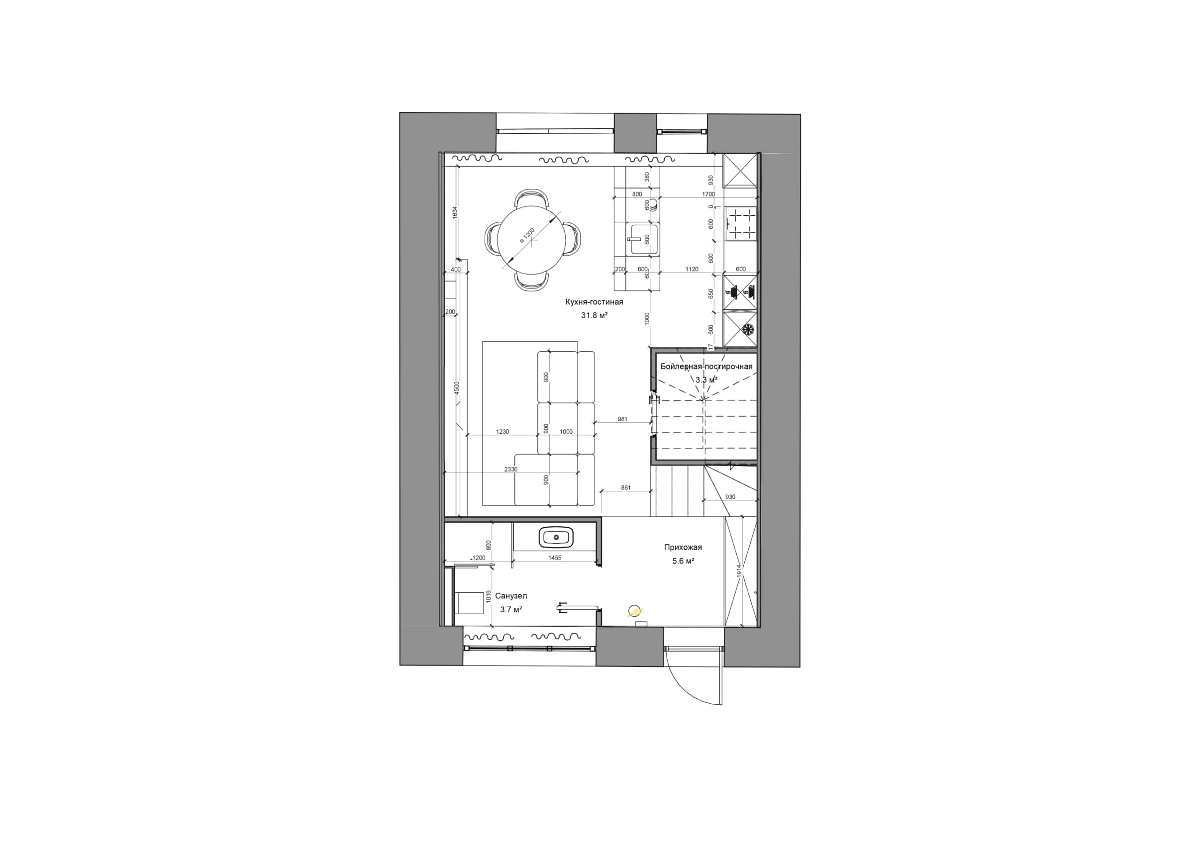
Основной идеей разработки проекта стало создание современного, эргономичного пространства с использованием светлых и монохромных оттенков. Сочетание теплой текстуры дерева и белого цвета создаёт уютную атмосфера и спокойное настроение. Вся квартира выдержана в единой гамме: белый цвет стен, текстильные акценты и чёрные вставки на переходе из одной плоскости в другую, подчёркивающие графичность комнат. Благодаря такому единству гаммы квартира выглядит целостной, светлой и свежей

Made on
Tilda