СИННАМОН
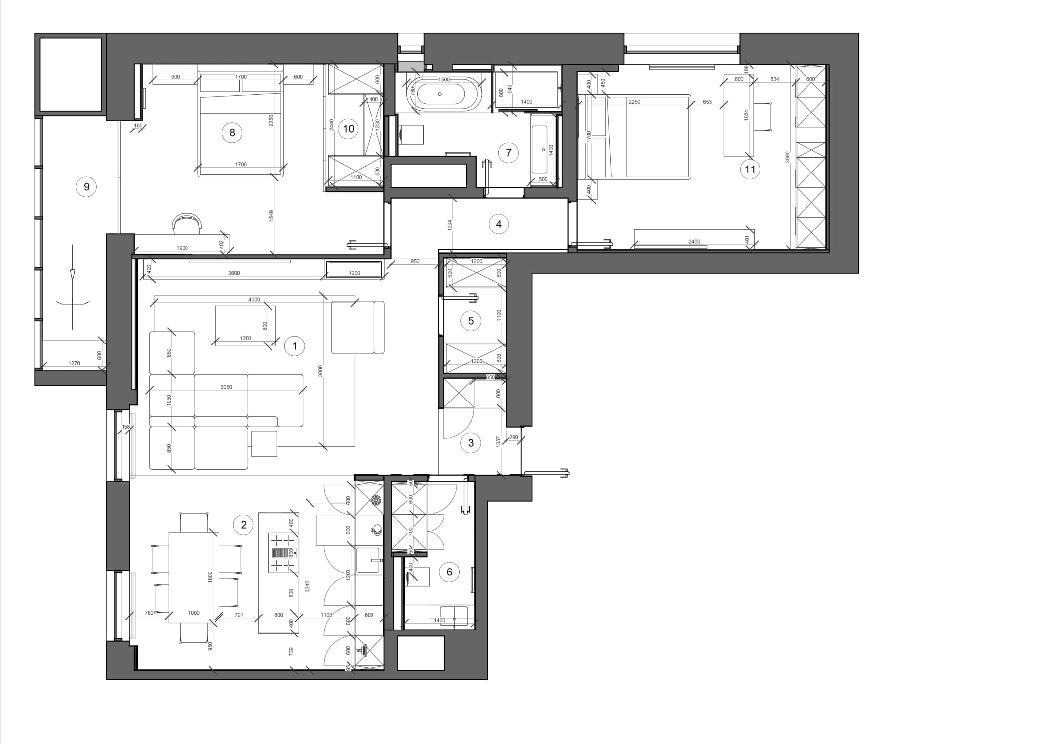
Общая площадь: 110 M²
Год реализации: 2022г
Расположение: Москва
Оставить заявку
Дизайн: Райгородская Елизавета, Плутяков Александр, Олимпиев Глеб
Фото: Максим Максимов
Видео: Krasyuk production
Стилист: Анна Бабенко, студия happy studio
О нас
Публикации
Контакты
Услуги
Главная
Жилой интерьер
Коммерческий интерьер
Архитектура
Свяжитесь с нам
Заполните поля ниже и мы с Вами свяжемся!
ОТПРАВИТЬ
НАЖИМАЯ КНОПКУ "ОТПРАВИТЬ", Я СОГЛАШАЮСЬ С
ПРАВИЛАМИ ПОЛИТИКИ КОНФИДЕНЦИАЛЬНОСТИ
САЙТА.
ЖИЛОЙ ИНТЕРЬЕР
КОММЕРЧЕСКИЙ ДИЗАЙН
АРХИТЕКТУРА
УСЛУГИ
О НАС
ПУБЛИКАЦИИ
КОНТАКТЫ
ОСТАВИТЬ ЗАЯВКУ
Made on
Tilda